Progetti – Settore Pubblico

La sezione raccoglie una selezione di interventi svolti per amministrazioni pubbliche e stazioni appaltanti, relativi a opere civili, strutturali e infrastrutturali.
I progetti presentati rappresentano le principali tipologie di incarico affrontate dallo Studio nell’ambito dei lavori pubblici

Tipologie di intervento

  • Progettazione strutturale di opere pubbliche civili e infrastrutturali

  • Interventi di riqualificazione ed efficientamento energetico di edifici pubblici

  • Adeguamento e miglioramento sismico di edifici esistenti

  • Progettazione e gestione degli interventi mediante metodologia BIM

  • Direzione dei lavori

  • Supporto tecnico alle stazioni appaltanti e ai R.U.P.

  • Coordinamento della sicurezza nei cantieri ai sensi del D.Lgs. 81/08

Le attività sopra elencate rappresentano le principali tipologie di incarico svolte dallo Studio nel settore pubblico e vengono sviluppate nel rispetto delle procedure previste per i lavori pubblici, delle esigenze della stazione appaltante e del quadro normativo di riferimento.
Ogni incarico è affrontato con un
approccio tecnico strutturato, orientato alla qualità progettuale, alla tracciabilità delle attività, alla sostenibilità degli interventi e al rispetto delle normative vigenti, garantendo un supporto completo lungo l’intero ciclo dell’opera.

SELEZIONE DEI NOSTRI PROGETTI


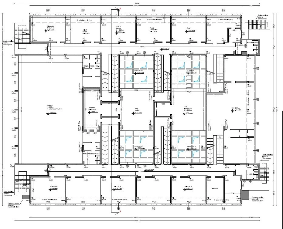
Miglioramento sismico ed efficientamento energetico della Scuola Secondaria di Primo Grado “Giulietti”

Riqualificazione strutturale ed energetica edificio esistente

L’intervento riguarda la riqualificazione integrata della Scuola Secondaria di Primo Grado “Giulietti”, edificio realizzato negli anni ’70, mediante un progetto coordinato di miglioramento sismico ed efficientamento energetico.

La progettazione è stata sviluppata mediante modellazione BIM, utilizzata come strumento di supporto alle scelte progettuali e al coordinamento interdisciplinare, consentendo una gestione integrata degli aspetti strutturali, edilizi ed energetici, nonché una maggiore verifica della fattibilità esecutiva degli interventi.

La strategia progettuale ha previsto la realizzazione di un nuovo involucro esterno sismo-resistente (cappotto sismico), finalizzato all’incremento della sicurezza strutturale dell’edificio e alla riduzione del fabbisogno energetico, attraverso il miglioramento delle prestazioni dell’involucro opaco e la sostituzione dei serramenti.

Gli interventi sono stati concepiti per essere eseguiti prevalentemente dall’esterno, riducendo le interferenze con le attività scolastiche e migliorando al contempo la qualità architettonica complessiva dell’edificio.

    • Comune di Casteggio (PV)

    • 2024

    • Progettazione strutturale

    • Progettazione edilizia

    • Progettazione integrata OO.PP.

    • Progettazione di miglioramento sismico

    • Progettazione energetica

    • Direzione lavori

    • Coordinamento per la sicurezza

    • Supporto alla fase di gara e validazione

    • Comune di Casteggio (PV)

    • Miglioramento sismico mediante sistema di cappotto sismico in c.a.

    • Realizzazione di nuovi setti sismo-resistenti fondati su pali

    • Nuove fondazioni perimetrali collegate alla struttura esistente

    • Efficientamento energetico dell’involucro opaco verticale

    • Sostituzione completa dei serramenti esterni

    • Eliminazione dei ponti termici e risoluzione delle criticità igrometriche

    • Riqualificazione architettonica delle facciate


Riqualificazione ed efficientamento energetico dell’I.T.S.O.S. “Curie M.

Riqualificazione ed Efficientamento Energetico

L’intervento ha riguardato la progettazione degli interventi di riqualificazione ed efficientamento energetico dell’I.T.S.O.S. “Curie M.” di Cernusco sul Naviglio,  eseguito in collaborazione con un’altra società di ingegneria.

Il progetto è stato sviluppato in BIM con l’obiettivo di ridurre i consumi energetici dell’edificio e migliorare le prestazioni complessive dell’involucro e degli impianti, nel rispetto della Legge 9 gennaio 1991 n. 10, del D.P.R. n. 74/2013 e delle più recenti normative nazionali e regionali in materia di contenimento energetico in edilizia ( progetto finanziato dalla regione Lombardia)

L’intervento ha interessato sia gli aspetti edilizi sia quelli impiantistici e tecnologici, configurandosi come un’opera integrata di adeguamento energetico e funzionale di un edificio pubblico ad uso scolastico.

    • Città Metropolitana di Milano

    • 2025

    • Progettazione Edile e Impiantistica ( quest’ultima svolta in collaborazione)

    • Cernusco sul Naviglio (MI)

    • Progettazione degli interventi di riqualificazione ed efficientamento energetico

    • Interventi sull’involucro edilizio (cappotto termico, isolamento coperture, serramenti)

    • Progettazione degli impianti di climatizzazione e produzione ACS ad alta efficienza

    • Progettazione di nuovi sistemi di trattamento aria e ventilazione meccanica

    • Progettazione del nuovo impianto fotovoltaico e cabina MT/BT

    • Relamping completo dell’edificio scolastico

    • Implementazione di sistemi di telecontrollo di Classe B


Recupero e rifunzionalizzazione dell’ex Caserma di Cavalleria – Archivio comunale di Voghera

Recupero edilizio e strutturale di edificio storico vincolato

L’intervento ha riguardato la progettazione e la direzione dei lavori per il recupero di una porzione del complesso edilizio storico dell’ex Caserma di Cavalleria di Voghera, destinata a ospitare il nuovo archivio degli uffici comunali.

L’edificio, di rilevante valore storico-architettonico e sottoposto a vincolo diretto della Soprintendenza competente, è stato oggetto di un progetto finalizzato alla conservazione dell’identità originaria del manufatto, con l’inserimento di nuove funzioni in modo compatibile e reversibile.

La soluzione progettuale ha previsto la realizzazione di una struttura interna completamente indipendente rispetto alle murature esistenti: un endoscheletro in acciaio, fondato su nuove strutture in calcestruzzo armato, in grado di assolvere in autonomia alle esigenze strutturali, funzionali e impiantistiche del nuovo archivio, senza interferire con l’organismo edilizio storico.

Il progetto è stato sviluppato in costante coordinamento con la Soprintendenza, nel rispetto delle prescrizioni conservative, integrando interventi di consolidamento, adeguamento impiantistico e rifunzionalizzazione degli spazi interni, con particolare attenzione alla sicurezza, alla durabilità e alla compatibilità tra nuovo e preesistente.

    • Comune di Voghera (PV)

  • 2023-2025

    • Progettazione

    • Direzione Lavori

    • Coordinamento della Sicurezza (CSP – CSE)

    • Via Gramsci – Ex Caserma di Cavalleria
      Voghera (PV)

    • Consolidamento delle murature portanti e dei solai a volta esistenti

    • Progettazione e realizzazione di endoscheletro strutturale in acciaio, indipendente dalle strutture storiche

    • Sostituzione integrale della copertura

    • Progettazione degli impianti di climatizzazione con pompe di calore e terminali fan coil

    • Progettazione degli impianti elettrici e antincendio

    • Opere interne di finitura (sottofondi, pavimentazioni, serramenti e pitturazioni)

    • Coordinamento con la Soprintendenza per il rispetto dei vincoli storico-architettonici


Riqualificazione urbana e viabilistica di Via Roma e Via Togliatti-Comune di San Martino Siccomario (PV)

Riqualificazione architettonica, paesaggistica e della viabilità urbana

L’intervento ha riguardato la riqualificazione urbana e viabilistica di Via Roma, nel tratto compreso tra il civico 186 e il civico 1, includendo il risvolto di Via Togliatti, per una lunghezza complessiva di circa 650 m e una superficie d’intervento pari a circa 9.500 m².

Il progetto si inserisce in un più ampio processo di valorizzazione degli spazi pubblici comunali, con l’obiettivo di migliorare la qualità urbana, la sicurezza dei pedoni e la continuità con le porzioni di via già riqualificate.

Elemento cardine dell’intervento è la realizzazione di una zona a traffico calmierato “AREA 30” di circa 125 m, caratterizzata da una nuova organizzazione della carreggiata e degli spazi di sosta, con pavimentazioni drenanti e fonoassorbenti in asfalto ecologico e marciapiedi in cubetti di porfido 6/8 cm, posati ad archi contrastati, in coerenza con le sistemazioni esistenti.

La soluzione progettuale ha privilegiato l’impiego di tecnologie innovative, garantendo elevata resistenza meccanica, gestione sostenibile delle acque meteoriche e riduzione dell’impatto acustico. Le restanti porzioni di via sono state mantenute con limite di velocità pari a 50 km/h, con adeguamento dei marciapiedi ai criteri di accessibilità e superamento delle barriere architettoniche, oltre alla riorganizzazione delle alberature e all’inserimento di nuove aree di sosta e arredo urbano.

    • Comune di San Martino Siccomario (PV)

  • 2019-2021

    • Progettazione

    • Direzione Lavori

    • Coordinamento della Sicurezza (CSP / CSE)

  • Via Roma-Comune di San Martino Siccomario (PV)

    • Progettazione architettonica e paesaggistica dell’intervento

    • Progettazione della viabilità e delle pavimentazioni stradali

    • Direzione Lavori

    • Coordinamento della sicurezza in fase di progettazione ed esecuzione

    • Riqualificazione degli spazi pubblici e delle aree pedonali

    • Introduzione di soluzioni di traffico calmierato (AREA 30)

    • Utilizzo di pavimentazioni drenanti e fonoassorbenti

    • Adeguamento dell’accessibilità e riorganizzazione degli spazi urbani


Messa in sicurezza e consolidamento del versante in frana – Località Ghiaia dei Risi - Comune di Borgo Priolo (PV)

Intervento di stabilizzazione di versante e protezione dell’abitato

L’intervento ha riguardato la progettazione delle opere di messa in sicurezza e consolidamento del versante in frana in località Ghiaia dei Risi, nel Comune di Borgo Priolo, a seguito dei gravi movimenti franosi verificatisi tra novembre 2019 e gennaio 2020, che hanno interessato l’area a monte del borgo causando, tra l’altro, il collasso di edifici residenziali.

Il progetto è stato sviluppato in collaborazione tra Comune di Borgo Priolo e Regione Lombardia e si inserisce in un contesto caratterizzato da un dissesto di notevole entità, già oggetto di precedenti interventi di consolidamento (2016–2017) risultati non efficaci. La progettazione ha pertanto richiesto un’attenta analisi delle condizioni geologiche e strutturali del sito, con l’obiettivo di individuare una soluzione definitiva di stabilizzazione del movimento franoso.

Obiettivo primario dell’intervento è la tutela dell’abitato e la prevenzione di nuovi fenomeni di instabilità, anche in presenza di eventi meteorici intensi o di sollecitazioni sismiche, garantendo un elevato livello di sicurezza condiviso con l’Amministrazione comunale.

Il progetto esecutivo prevede un insieme coordinato di opere strutturali, idrauliche e di mitigazione ambientale, finalizzate al consolidamento del versante e alla regimazione delle acque, assicurando la durabilità e l’efficacia degli interventi nel tempo.

Intervento di elevata rilevanza per la sicurezza del territorio, sviluppato in un contesto di dissesto complesso e caratterizzato da precedenti opere non risolutive, con approccio progettuale integrato tra aspetti strutturali, idraulici e ambientali.

    • Regione Lombardia – Comune di Borgo Priolo

  • 2021 – in attesa della fase esecutiva

    • Progettazione

    • Direzione Lavori

    • Coordinamento della Sicurezza (CSP / CSE)

  • Località Ghiaia dei Risi – Borgo Priolo (PV)

    • Progettazione per la rimozione delle macerie derivanti dal collasso degli edifici a valle della frana

    • Realizzazione di muro di sostegno in calcestruzzo armato su pali trivellati

    • Inserimento di barriera in gabbioni metallici in sostituzione della terra armata collassata

    • Regolarizzazione del corpo di frana con formazione di terrazzamenti

    • Installazione di subdreni orizzontali per il controllo delle pressioni interstiziali

    • Progettazione Regimazione delle acque superficiali da monte a valle del versante

    • Sistemazione a verde con funzione di mitigazione ambientale e paesaggistica

Contatti
Avanti
Avanti

SETTORE PRIVATO