Progetti – Settore Privato

La sezione raccoglie una selezione di interventi svolti per committenti privati e imprese, relativi a opere civili e strutturali. I progetti presentati rappresentano le principali tipologie di incarico affrontate dallo Studio.

Tipologie di intervento

  • Progettazione strutturale di edifici civili e industriali

  • Interventi di ristrutturazione e recupero edilizio

  • Adeguamento e miglioramento sismico di edifici esistenti

  • Direzione dei lavori

  • Supporto tecnico alle imprese in fase esecutiva

  • Coordinamento della sicurezza nei cantieri ai sensi D.Lgs. 81/08)

Le attività sopra elencate rappresentano le principali tipologie di incarico svolte dallo Studio nel settore privato e vengono sviluppate in funzione delle specifiche esigenze del committente, delle caratteristiche dell’intervento e del contesto normativo di riferimento. Ogni incarico è affrontato con un approccio tecnico strutturato, orientato alla qualità progettuale, alla fattibilità esecutiva e al rispetto delle normative vigenti, garantendo un supporto completo lungo l’intero ciclo dell’opera.

SELEZIONE DEI NOSTRI PROGETTI


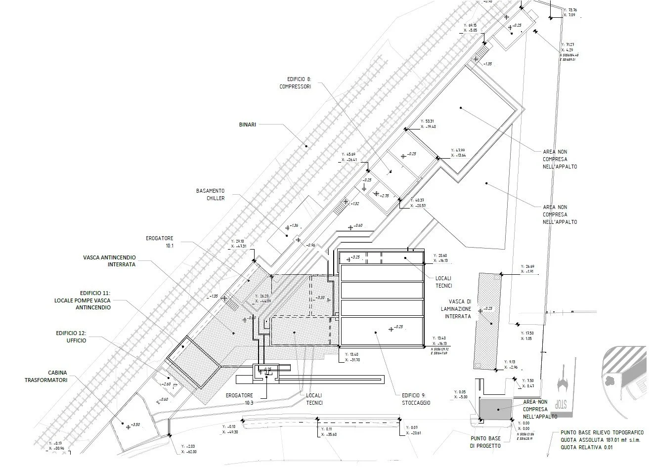
Realizzazione di infrastrutture strutturali per un impianto di produzione e di rifornimento a idrogeno per treni ed autobus- Iseo

Infrastrutture e impianti tecnologici

L’intervento ha riguardato la progettazione strutturale delle opere civili e infrastrutturali a servizio della prima stazione di rifornimento a idrogeno realizzata in Italia, inserita in un contesto tecnologico di elevata complessità e con requisiti prestazionali e di sicurezza particolarmente stringenti.

Sono state progettate le strutture in calcestruzzo armato della vasca antincendio (650m³), del locale pompe a servizio del presidio dei Vigili del Fuoco, del locale compressori e del locale di stoccaggio, tutti componenti essenziali per la sicurezza e l’operatività dell’infrastruttura. L’incarico ha incluso inoltre la progettazione strutturale dei cunicoli per il passaggio dei sotto-impianti, dei cunicoli fognari, nonché di una vasca di laminazione, elementi fondamentali per la gestione delle acque e per il corretto funzionamento dell’impianto.
Le opere strutturali sono state sviluppate con particolare attenzione agli aspetti di durabilità, sicurezza, integrazione impiantistica e affidabilità nel tempo, nel rispetto delle normative vigenti e delle specifiche tecniche di settore, in un’opera caratterizzata da elevata complessità costruttiva e funzionale.

Il progetto si configura come un intervento di rilevanza strategica, sia per le dimensioni e l’articolazione delle opere, sia per il ruolo pionieristico nell’ambito delle nuove infrastrutture energetiche, richiedendo un approccio progettuale altamente coordinato, specialistico e multidisciplinare.

    • Siram s.p.a.

  • 2024-2025

    • Progettazione strutturale

    • Iseo

    • Analisi, progettazione e verifica strutturale delle nuove opere

    • Progettazione di sistema fognario

    • Progettazione cunicolo sotto-impianti

    • Assistenza tecnica durante le fasi realizzative


Riqualificazione sismica edificio tecnologico – Campus Universitario di Parma

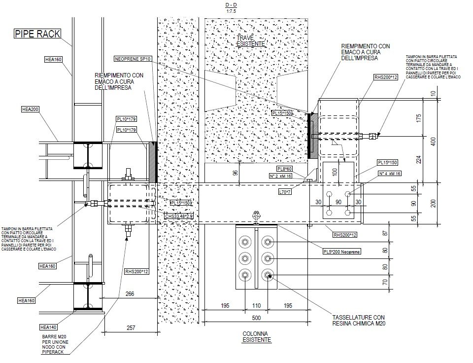
Intervento di miglioramento sismico

Intervento di miglioramento sismico di un edificio tecnologico a servizio del Campus Universitario di Parma, inserito all’interno di un più ampio programma di riqualificazione energetica del complesso.
L’edificio, realizzato negli anni ’80 e successivamente ampliato, presenta una struttura mista costituita da telai prefabbricati e porzioni in calcestruzzo armato gettato in opera, con sviluppo su più livelli e destinazioni d’uso differenziate tra piano terra e piani superiori.

A causa dell’impossibilità di operare con interventi invasivi all’interno dell’edificio, sia per vincoli funzionali sia per la necessità di garantire la continuità delle attività tecniche, il progetto ha previsto la realizzazione di un nuovo esoscheletro strutturale esterno, capace di migliorare il comportamento sismico globale dell’edificio senza interferire con le strutture e gli impianti esistenti.

    • Siram s.p.a.

  • 2023-2024

    • Progettazione strutturale

    • Computi metrici

    • Campus Universitario di Parma

    • Analisi strutturale dell’edificio esistente in struttura mista prefabbricata e in calcestruzzo armato

    • Progettazione di un sistema di rinforzo sismico mediante esoscheletro metallico esterno

    • Inserimento di setti in calcestruzzo armato e struttura metallica reticolare per l’assorbimento delle azioni sismiche

    • Verifica delle fondazioni esistenti e progettazione degli elementi di collegamento strutturale

    • Integrazione funzionale dell’esoscheletro con funzione di supporto impiantistico (pipe-rack)


Ristrutturazione e cambio d’uso di edificio multipiano con ampliamento interrato

Ristrutturazione – Recupero edilizio / Residenziale

Intervento di ristrutturazione strutturale di un edificio multipiano ad uso opificio, finalizzato al cambio di destinazione d’uso a residenziale con autorimesse pertinenziali ai piani interrati. L’intervento ha previsto operazioni complesse di consolidamento e ampliamento delle strutture esistenti. L’intervento è stato sviluppato con un approccio tecnico strutturato, orientato alla fattibilità esecutiva, alla gestione delle fasi di cantiere e al rispetto delle normative vigenti, garantendo il recupero funzionale dell’edificio e la sicurezza delle opere realizzate.

    • Privato

  • 2014-2015

    • Progettazione strutturale

    • DL opere strutturali

    • CSP-CSE

  • San Marino

    • Analisi della struttura esistente in c.a. e muratura portante

    • Progettazione di un nuovo piano interrato mediante interventi di sottomurazione

    • Verifica e adeguamento strutturale delle opere esistenti

    • Progettazione di nuovi solai in calcestruzzo armato

    • Inserimento di scale in acciaio e nuovi vani ascensore in c.a.

    • Supporto tecnico per il rispetto delle prescrizioni normative sui parcheggi pertinenziali

Contatti
Indietro
Indietro

SETTORE PUBBLICO